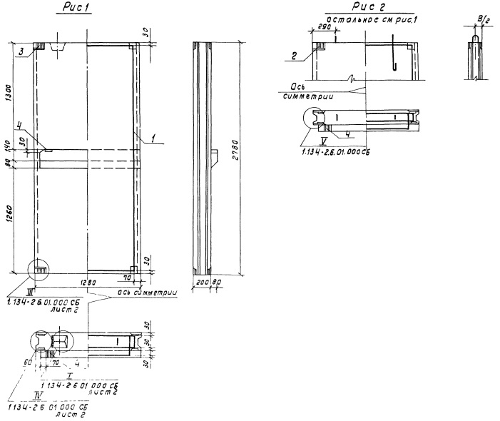
СБЛ 13.28.2-п-1

Чертеж изделия:
Чертеж СБЛ 13.28.2-п-1
Характеристики изделия:
ПараметрЗначение
Длина1280 мм
Ширина200 мм
Высота2780 мм
Масса1170 кг
Нормативный документСерия 1.134-2

Блоки внутренних стен из легких бетонов толщиной 16 и 20 см  для жилых зданий высотой 1-4 этажа и общественных зданий высотой 1-3 этажа по Серии 1.134-2.

СБЛ 13.28.2-п-1  Стеновой блок лестничных клеток. (рис.1)