НР5-58.27.35-2бл

Чертеж изделия:
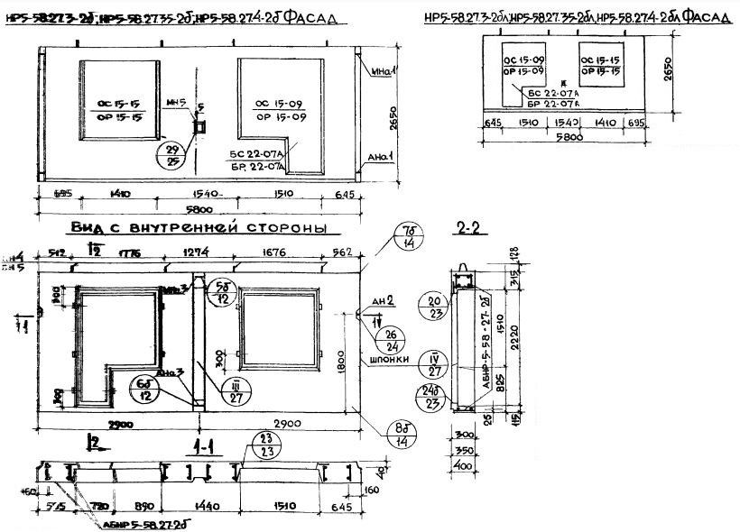
Чертеж НР5-58.27.35-2бл
Характеристики изделия:
ПараметрЗначение
Длина5800 мм
Ширина350 мм
Высота2650 мм
Масса5310 кг
Нормативный документСерия 1.132-1

НР5-58.27.35-2бл  Наружная стеновая панель рядовая по Серии 1.132-1.